Overview
- Updated On:
- October 2, 2025
- 1 Bedrooms
- 2 Bedrooms
- 1 Bathrooms
- 604 ft2
Description
Arkade Serene – 1 and 2 BHK Apartment in Mumbai
Configurations : 1,2 BHK Apartment
Possession By : Jun 2024
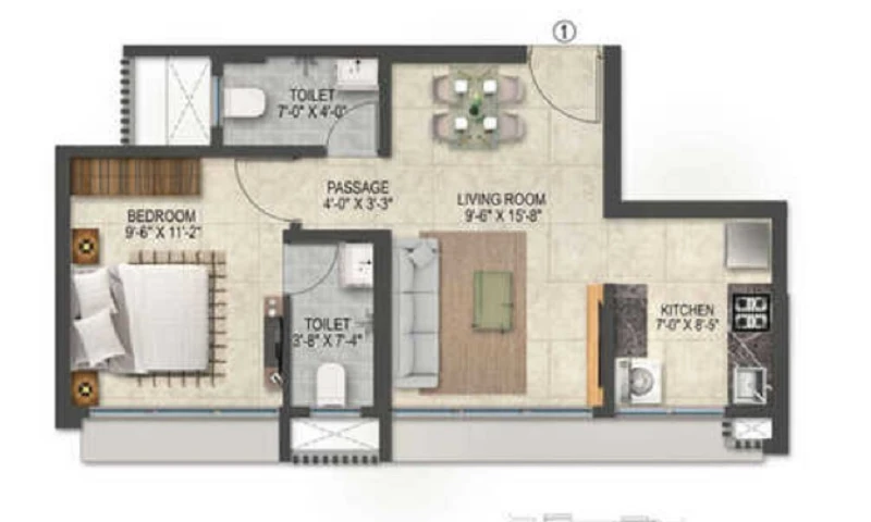
Super Builtup Area : 409 – 604 sq.ft
About Arkade Serene
Arkade Serene Residential projects in Mumbai offering Apartments for sale in Malad West. The property offers 1&2 BHK Apartments meticulously planned that guarantee a hassle-free lifestyle. As per the area plan it is set in 0.67 Acres and has 122 units in the size range 409.00 sq.ft. – 604.00 sq.ft. Possession date is June 2024. Arkade Serene offers prices suitable for both luxurious and affordable Apartments in Mumbai. Arkade Serene is located Malad West. This is considered as best Apartments for sale in Mumbai and best Apartments for sale in Malad West. The floor plan of Arkade Serene enables the best utilization of the space with spacious balconies, standard kitchen size and high-quality fixtures. Location advantage of Arkade Serene is its proximity to Reputed Schools and Colleges. Unmatched connectivity from all the important landmarks and places. Easy access to everyday utility such as hospitals, schools, supermarts, parks, recreational centers etc. In terms of facilities, Arkade Serene is loaded with multiple offerings such as Gymnasium, Power Backup. For families with kids, there is Children Play Area. It is a Gated Community. Immerse yourself in a world of sports with provisions for Tennis Court, Basketball court, Badminton Court, Cycling. Residents can make use of Restaurants/Cafeterias, Internet / Wi-Fi, provisions in the project. There is 24×7 Security. It is one of the most admired properties for sale in Mumbai and admired properties for sale in Malad West. A quality lifestyle, and not just owning a home, is an inherent dream for all. At Arkade, every space we create is a celebration of that dream. For more than three decades, under the patronage of Mr. Mangilal Jain, and the leadership of Mr. Amit Jain, Arkade has always been looking at the bigger perspective rather than just building structures. We believe in crafting outstanding residential and commercial spaces that can add value to people’s lives in a contemporary manner.
Amenities
Lift
Security
CCTV Camera
Maintenance Staff
Swimming Pool
Gym
Visitor Parking
Jogging Track
Kids Play Area
Kids Play Pool
Multipurpose Hall
Power Backup
Large Open Space
Internet Connectivity
24by7 Water
Waste Disposal
RainWater Harvesting
Gated Society
Laundry Services
Rental Income Calculator
This is rent calculator for help investor to calculate rental income. Lets Calculate how much you earn if you buy property in this project and rent it out for many years.
Project : Arkade Serene – 1 and 2 BHK Apartment in Mumbai
Property ROI calculator
Summary
- Loan Amount
- Monthly EMI
- Total EMI Amount
- Total Invested
- Total Rental Income
- Save From Rent
- Total Property Value
- Net Profit
- 0.00
- 0.00
- 0.00
- 0.00
- 0.00
- 0.00
- 0.00
- 0.00


















