Overview
- Updated On:
- October 6, 2025
- 2 Bedrooms
- 3 Bedrooms
- 2 Bathrooms
- 1,460 ft2
Description
Arvind Parishkaar – 2 and 3 BHK Apartment in Navi Mumbai
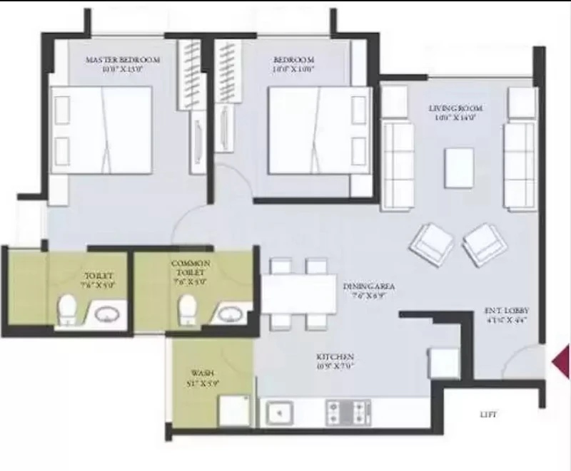
Configurations : 2 and 3 BHK Apartment
Project Status : Ready to Move
(Super Builtup Area) : 1027 – 1460 sq.ft
About Arvind Parashar
Arvind Parishkaar Residential projects in Navi Mumbai offering Apartments for sale in Maninagar. The property offers 2&3 BHK Apartments meticulously planned that guarantee a hassle-free lifestyle. As per the area plan it is set in 20 Acres and the size range 1027.00 sq.ft. – 1460.00 sq.ft. Possession date is ready to move. Arvind Parishkaar offers prices suitable for both luxurious and affordable Apartments in Navi Mumbai. Arvind Parishkaar is located Maninagar. This is considered as best Apartments for sale in Navi Mumbai and best Apartments for sale in Maninagar. The floor plan of Arvind Parishkaar enables the best utilization of the space with spacious balconies, standard kitchen size and high-quality fixtures. Location advantage of Arvind Parishkaar is its proximity to Reputed Schools and Colleges. Unmatched connectivity from all the important landmarks and places. Easy access to everyday utility such as hospitals, schools, supermarts, parks, recreational centers etc. In terms of facilities, Arvind Parishkaar is loaded with multiple offerings such as Gymnasium, Power Backup. For families with kids, there is Children Play Area. It is a Gated Community. Immerse yourself in a world of sports with provisions for Tennis Court, Basketball court, Badminton Court, Cycling. Residents can make use of Restaurants/Cafeterias, Internet / Wi-Fi, provisions in the project. There is 24×7 Security. It is one of the most admired properties for sale in Navi Mumbai and admired properties for sale in Maninagar. Arvind SmartSpaces is the real estate arm of Kasturbhai Lalbhai Group and is one of the fastest growing businesses in their portfolio. The mark of true craftsmen is the pride they take in their creation. It is the passion for their craft that drives them to surpass norms of acceptability and explore the very limits of perfection. And the ultimate reward for the craft is the joy it delivers to the end user.
Amenities
Lift
Security
CCTV Camera
Maintenance Staff
Swimming Pool
Gym
Visitor Parking
Jogging Track
Kids Play Area
Kids Play Pool
Multipurpose Hall
Power Backup
Large Open Space
Internet Connectivity
24by7 Water
Waste Disposal
RainWater Harvesting
Gated Society
Laundry Services
Rental Income Calculator
This is rent calculator for help investor to calculate rental income. Lets Calculate how much you earn if you buy property in this project and rent it out for many years.
Project : Arvind Parishkaar – 2 and 3 BHK Apartment in Navi Mumbai
Property ROI calculator
Summary
- Loan Amount
- Monthly EMI
- Total EMI Amount
- Total Invested
- Total Rental Income
- Save From Rent
- Total Property Value
- Net Profit
- 0.00
- 0.00
- 0.00
- 0.00
- 0.00
- 0.00
- 0.00
- 0.00
















