Overview
- Updated On:
- October 2, 2025
- 1 Bedrooms
- 3 Bedrooms
- 2 Bedrooms
- 2 Bathrooms
- 850 ft2
Description
DGS Sheetal Tapovan – 1, 2 and 3 BHK Apartment in Mumbai
Configurations : 1,2,3 BHK Apartment
Possession By : Dec 2022
Super Builtup Area : 340 – 850 sq.ft
About DGS Sheetal Tapovan
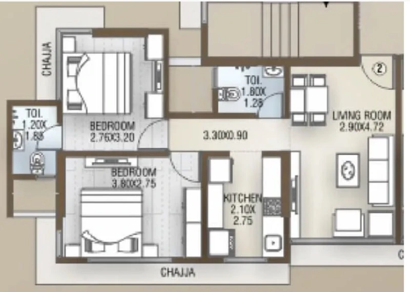
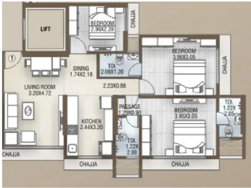
DGS Sheetal Tapovan Residential projects in Mumbai offering Apartments for sale in Malad East. The property offers 1&2BHK Apartments meticulously planned that guarantee a hassle-free lifestyle. As per the area plan it is set in 4 Acres and has 463 units in the size range 340.00 sq.ft. – 850.00 sq.ft. Possession date is Dec 2022. DGS Sheetal Tapovan offers prices suitable for both luxurious and affordable Apartments in Mumbai. DGS Sheetal Tapovan is located Malad East. This is considered as best Apartments for sale in Mumbai and best Apartments for sale in Malad East.
The floor plan of DGS Sheetal Tapovan enables the best utilization of the space with spacious balconies, standard kitchen size and high-quality fixtures. Location advantage of DGS Sheetal Tapovan is its proximity to Reputed Schools and Colleges. Unmatched connectivity from all the important landmarks and places. Easy access to everyday utility such as hospitals, schools, supermarts, parks, recreational centers etc.
In terms of facilities, DGS Sheetal Tapovan is loaded with multiple offerings such as Gymnasium, Power Backup. For families with kids, there is Children Play Area. It is a Gated Community. Immerse yourself in a world of sports with provisions for Tennis Court, Basketball court, Badminton Court, Cycling. Residents can make use of Restaurants/Cafeterias, Internet / Wi-Fi, provisions in the project. There is 24×7 Security. It is one of the most admired properties for sale in Mumbai and admired properties for sale in Malad East.
DGS Group has been built on trust, reliability, integrity and thoughtfulness. Since its inception, the trust of the people in DGS Group has been the foundation for our success and their unwavering faith motivates us to serve even more. Challenging the standard requires extraordinary mental fortitude and unprecedented conviction in the team. It is the strength of our determination, to serve the customers and offer a dream home within their budget, that motivates us every day to challenge the status quo. DGS group has constantly supported very diverse thinking with regards to spaces and that is the reason why customers today perceive DGS Group as one of Mumbai’s premium builders & developers, listed among the leading brands in the city.
Amenities
Lift
Security
CCTV Camera
Maintenance Staff
Swimming Pool
Gym
Visitor Parking
Jogging Track
Kids Play Area
Kids Play Pool
Multipurpose Hall
Power Backup
Large Open Space
Internet Connectivity
24by7 Water
Waste Disposal
RainWater Harvesting
Gated Society
Laundry Services
Rental Income Calculator
This is rent calculator for help investor to calculate rental income. Lets Calculate how much you earn if you buy property in this project and rent it out for many years.
Project : DGS Sheetal Tapovan – 1, 2 and 3 BHK Apartment in Mumbai
Property ROI calculator
Summary
- Loan Amount
- Monthly EMI
- Total EMI Amount
- Total Invested
- Total Rental Income
- Save From Rent
- Total Property Value
- Net Profit
- 0.00
- 0.00
- 0.00
- 0.00
- 0.00
- 0.00
- 0.00
- 0.00



















