Overview
- Updated On:
- August 26, 2025
- 3 Bedrooms
- 3 Bathrooms
- 2,050 ft2
Description
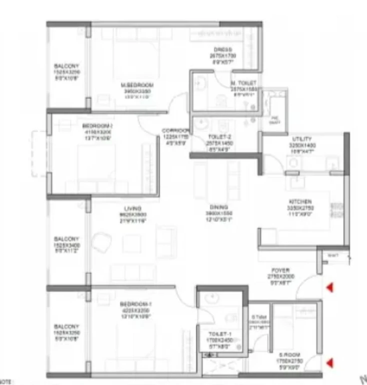
Godrej Athena – 3 BHK Apartment in Bangalore
Configurations : 3 BHK Apartment
Possession By : Dec 2026
(Super Builtup Area) : 1710 – 2050 sq.ft
About Godrej Athena
Godrej Athena Residential projects in Bangalore offering Apartments for sale in Indira Nagar. The property offers 3BHK Apartments meticulously planned that guarantee a hassle-free lifestyle. As per the area plan it is set in 6.5 Acres and has 300 units in the size range 1710.00 sq.ft. – 2050.00 sq.ft. Possession date is Dec 2027. Godrej Athena offers prices suitable for both luxurious and affordable Apartments in Bangalore. Godrej Athena is located Indira Nagar. This is considered as best Apartments for sale in Bangalore and best Apartments for sale in Indira Nagar.
The floor plan of Godrej Athena enables the best utilization of the space with spacious balconies, standard kitchen size and high-quality fixtures. Location advantage of Godrej Athena is its proximity to Reputed Schools and Colleges. Unmatched connectivity from all the important landmarks and places. Easy access to everyday utility such as hospitals, schools, supermarts, parks, recreational centers etc.
In terms of facilities, Godrej Athena is loaded with multiple offerings such as Gymnasium, Power Backup. For families with kids, there is Children Play Area. It is a Gated Community. Immerse yourself in a world of sports with provisions for Tennis Court, Basketball court, Badminton Court, Cycling. Residents can make use of Restaurants/Cafeterias, Internet / Wi-Fi, provisions in the project. There is 24×7 Security. It is one of the most admired properties for sale in Bangalore and admired properties for sale in Indira Nagar.
Amenities
Lift
Security
CCTV Camera
Maintenance Staff
Swimming Pool
Gym
Visitor Parking
Jogging Track
Kids Play Area
Kids Play Pool
Multipurpose Hall
Power Backup
Large Open Space
Internet Connectivity
24by7 Water
Waste Disposal
RainWater Harvesting
Gated Society
Laundry Services
Rental Income Calculator
This is rent calculator for help investor to calculate rental income. Lets Calculate how much you earn if you buy property in this project and rent it out for many years.
Project : Godrej Athena – 3 BHK Apartment in Bangalore
Property ROI calculator
Summary
- Loan Amount
- Monthly EMI
- Total EMI Amount
- Total Invested
- Total Rental Income
- Save From Rent
- Total Property Value
- Net Profit
- 0.00
- 0.00
- 0.00
- 0.00
- 0.00
- 0.00
- 0.00
- 0.00













