Overview
- Updated On:
- September 29, 2025
- 1 Bedrooms
- 2 Bedrooms
- 3 Bedrooms
- 2 Bathrooms
- 815 ft2
Description
Godrej Green Cove – 1, 2 and 3 BHK Apartment in Pune
Configurations : 1,2,3 BHK Apartment
Possession By : Oct 2024
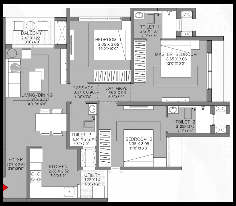
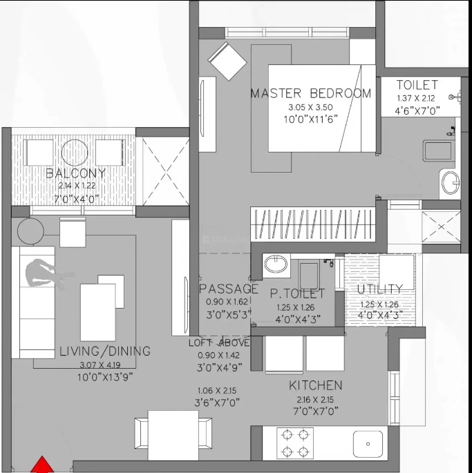
Super Builtup Area : 468 – 815 sq.ft
About Godrej Green Cove
Godrej Green cove Apartments in Mahalunge, Pune is being developed by Godrej Properties Limited with all modern features for modern lifestyle. Godrej Properties is a reputed Indian real estate company having 120-year legacy of excellence and trust. Godrej Properties is currently developing residential, commercial and township projects spread across approximately 14.36 million square meters (147 million square feet) in 12 cities. Godrej Green cove is a residential project in Mahalunge, Pune and is set in an area of 4.33 Acres. Godrej Green cove offers Apartment configurations of 1 BHK, 2 BHK, 3 BHK and the area planned are in the size range of 468-815 sq.ft.. The property is Under Construction. There are 4 buildings with 356 units for sale. This project was launched in March 2020 and possession date of Godrej Green cove is Oct 2024. Godrej Green cove is located in Mahalunge, Pune. Godrej Green cove offers various amenities that includes Gymnasium, Children’s Play Area, Swimming Pool, Sports Area. Cricket Pitch, Skating Rink, Cycling & Jogging Track. Residents can also enjoy use of Spa/Sauna/Steam, Restaurants/ Cafeterias, provisions in the project. It is a Gated Community with Open Car Parking, Closed Car Parking. It is one of the most admired residential projects in Pune.
Amenities
Lift
Security
CCTV Camera
Maintenance Staff
Swimming Pool
Gym
Visitor Parking
Jogging Track
Kids Play Area
Multipurpose Hall
Power Backup
Large Open Space
Internet Connectivity
24by7 Water
Waste Disposal
RainWater Harvesting
Gated Society
Laundry Services
Rental Income Calculator
This is rent calculator for help investor to calculate rental income. Lets Calculate how much you earn if you buy property in this project and rent it out for many years.
Project : Godrej Green Cove – 1, 2 and 3 BHK Apartment in Pune
Property ROI calculator
Summary
- Loan Amount
- Monthly EMI
- Total EMI Amount
- Total Invested
- Total Rental Income
- Save From Rent
- Total Property Value
- Net Profit
- 0.00
- 0.00
- 0.00
- 0.00
- 0.00
- 0.00
- 0.00
- 0.00





















