Overview
- Updated On:
- October 1, 2025
- 1 Bedrooms
- 1 Bathrooms
- 920 ft2
Description
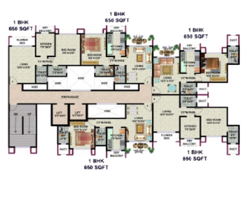
HDIL Galaxy – 1 and 2 BHK Apartment in Mumbai
Configurations : 1,2 BHK Apartment
Project Status : Ready to Move
(Super Builtup Area) : 650 – 920 sq.ft
About HDIL Galaxy
HDIL Galaxy Residential projects in Mumbai offering Apartments for Sale in Kurla East. The property offers 1&2BHK Apartments meticulously planned that guarantee a hassle-free lifestyle. As per the area plan it has 276 units in the size range 650.00 sq.ft. – 920.00 sq.ft. Possession date is ready to move. HDIL Galaxy offers prices suitable for both luxurious and affordable Apartments in Mumbai. HDIL Galaxy is located Kurla East. This is considered as best Apartments for Sale in Mumbai and best Apartments for Sale in Kurla East.
The floor plan of HDIL Galaxy enables the best utilization of the space with spacious balconies, standard kitchen size and high-quality fixtures. Location advantage of HDIL Galaxy is its proximity to Reputed Schools and Colleges. Unmatched connectivity from all the important landmarks and places. Easy access to everyday utility such as hospitals, schools, supermarts, parks, recreational centers etc.
In terms of facilities, HDIL Galaxy is loaded with multiple offerings such as Gymnasium, Power Backup. For families with kids, there is Children Play Area. It is a Gated Community. Immerse yourself in a world of sports with provisions for Tennis Court, Basketball court, Badminton Court, Cycling. There is 24×7 Security. It is one of the most admired properties for Sale in Mumbai and admired properties for Sale in Kurla East.
Amenities
Lift
Security
CCTV Camera
Maintenance Staff
Swimming Pool
Gym
Visitor Parking
Jogging Track
Kids Play Area
Kids Play Pool
Multipurpose Hall
Power Backup
Large Open Space
Internet Connectivity
24by7 Water
Waste Disposal
RainWater Harvesting
Gated Society
Laundry Services
Rental Income Calculator
This is rent calculator for help investor to calculate rental income. Lets Calculate how much you earn if you buy property in this project and rent it out for many years.
Project : HDIL Galaxy – 1 and 2 BHK Apartment in Mumbai
Property ROI calculator
Summary
- Loan Amount
- Monthly EMI
- Total EMI Amount
- Total Invested
- Total Rental Income
- Save From Rent
- Total Property Value
- Net Profit
- 0.00
- 0.00
- 0.00
- 0.00
- 0.00
- 0.00
- 0.00
- 0.00

















