Overview
- Updated On:
- October 2, 2025
- 1 Bedrooms
- 1 Bathrooms
- 1,070 ft2
Description
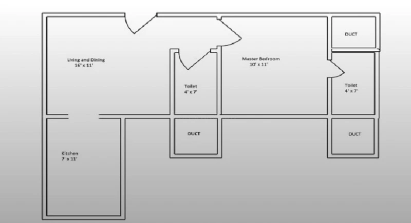
Hubtown Akruti Orchid park – 1 and 2 BHK Apartment in Mumbai
Configurations : 1,2 BHK Apartment
Project Status : Ready to Move
Super Builtup Area : 600 – 1070 sq.ft
About Hubtown Akruti Orchid park
Hubtown Akruti Orchid Park Residential projects in Mumbai offering Apartments for sale in Andheri East. The property offers 1&2BHK Apartments meticulously planned that guarantee a hassle-free lifestyle. As per the area plan it is set in 3 Acres and has 360 units in the size range 600.00 sq.ft. – 1070.00 sq.ft. Possession date is ready to move. Hubtown Akruti Orchid Park offers prices suitable for both luxurious and affordable Apartments in Mumbai. Hubtown Akruti Orchid Park is located Andheri East. This is considered as best Apartments for sale in Mumbai and best Apartments for sale in Andheri East.
The floor plan of Hubtown Akruti Orchid Park enables the best utilization of the space with spacious balconies, standard kitchen size and high-quality fixtures. Location advantage of Hubtown Akruti Orchid Park is its proximity to Reputed Schools and Colleges. Unmatched connectivity from all the important landmarks and places. Easy access to everyday utility such as hospitals, schools, supermarts, parks, recreational centers etc.
In terms of facilities, Hubtown Akruti Orchid Park is loaded with multiple offerings such as Gymnasium, Power Backup. For families with kids, there is Children Play Area. It is a Gated Community. Immerse yourself in a world of sports with provisions for Tennis Court, Basketball court, Badminton Court, Cycling. Residents can make use of Restaurants/Cafeterias, Internet / Wi-Fi, provisions in the project. There is 24×7 Security. It is one of the most admired properties for sale in Mumbai and admired properties for sale in Andheri East.
Formerly known as Ackruti City Limited, Hubtown is one of India’s leading real estate companies, with over 3 decades of experience Projects covering the entire spectrum of real estate development including Residential, Commercial, IT, Industrial, Infrastructure. Business spread across Mumbai, Thane, Mumbai, Mumbai, and 4 cities in Gujarat. Over 15 million sq. ft. of construction work already completed.
Amenities
Lift
Security
CCTV Camera
Maintenance Staff
Swimming Pool
Gym
Visitor Parking
Jogging Track
Kids Play Area
Kids Play Pool
Multipurpose Hall
Power Backup
Large Open Space
Internet Connectivity
24by7 Water
Waste Disposal
RainWater Harvesting
Gated Society
Laundry Services
Rental Income Calculator
This is rent calculator for help investor to calculate rental income. Lets Calculate how much you earn if you buy property in this project and rent it out for many years.
Project : Hubtown Akruti Orchid Park – 1 and 2 BHK Apartment in Mumbai
Property ROI calculator
Summary
- Loan Amount
- Monthly EMI
- Total EMI Amount
- Total Invested
- Total Rental Income
- Save From Rent
- Total Property Value
- Net Profit
- 0.00
- 0.00
- 0.00
- 0.00
- 0.00
- 0.00
- 0.00
- 0.00
















