Overview
- Updated On:
- October 7, 2025
- 4 Bedrooms
- 3 Bedrooms
- 3 Bathrooms
- 2,420 ft2
Description
Mahindra Bloomdale Villa – 3 and 4 BHK Independent House and Villa in Nagpur
Configurations : 3,4 BHK Independent House and Villa
Project Status : Ready to Move
(Super Builtup Area) : 2345 – 2420 sq.ft
About Mahindra Bloomdale Villa
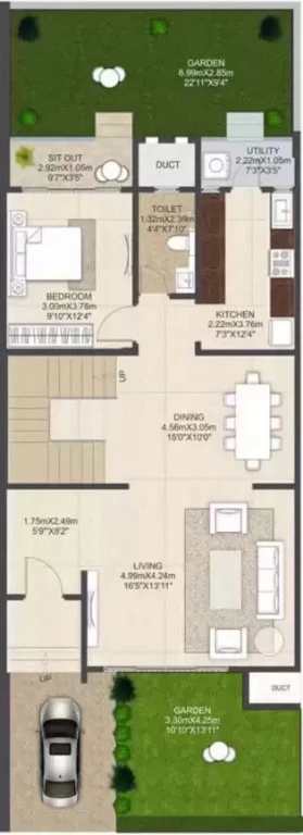
Mahindra Bloomdale Villa Residential projects in Nagpur offering Villa for sale in Wardha Road. The property offers 3&4BHK meticulously planned that guarantee a hassle-free lifestyle. As per the area plan, units are in the size range 2345-2420sq.ft. The project Mahindra Bloomdale has 94 units The project Mahindra Bloomdale Villa Possession date is Ready-to-move. Mahindra Bloomdale Villa offers prices suitable for both luxurious and affordable Apartments in Nagpur. Mahindra Bloomdale Villa is located Wardha Road The floor plan of Mahindra Bloomdale Villa enables the best utilization of the space with spacious balconies, standard kitchen size and high-quality fixtures. Location advantage of Mahindra Bloomdale Villais its proximity to Reputed Schools and Colleges. Unmatched connectivity from all the important landmarks and places. Easy access to everyday utility such as hospitals, schools, supermarts, parks, recreational centers etc. In terms of facilities, Mahindra Bloomdale Villa is loaded with multiple offerings such as Gymnasium, Power Backup. For families with kids, there is Children Play Area, nearby apart from Swimming Pool. It is a Gated Community. Immerse yourself in a world of sports with provisions for Tennis Court, Basketball court, Badminton Court, Cycling & Jogging Track. Residents can make use of Restaurants/Cafeterias, Internet / Wi-Fi, provisions in the project. There is 24×7 Security. It is one of the most admired residential projects in Nagpur. Mahindra Life space Developers Ltd. is the real estate & infrastructure development company of US Dollar 20.7 billion Mahindra Group. They are also a pioneer of sustainable urbanization in India. The Company is committed to transforming India’s urban landscape through its residential developments under the ‘Mahindra Life spaces’ and ‘Happiness’ brands; and through its integrated cities and industrial clusters under the ‘Mahindra World City’ and ‘Origins by Mahindra World City’ brands.
Amenities
Lift
Security
CCTV Camera
Maintenance Staff
Swimming Pool
Gym
Visitor Parking
Jogging Track
Kids Play Area
Kids Play Pool
Multipurpose Hall
Power Backup
Large Open Space
Internet Connectivity
24by7 Water
Waste Disposal
RainWater Harvesting
Gated Society
Laundry Services
Rental Income Calculator
This is rent calculator for help investor to calculate rental income. Lets Calculate how much you earn if you buy property in this project and rent it out for many years.
Project : Mahindra Bloomdale Villa – 3 and 4 BHK Independent House and Villa in Nagpur
Property ROI calculator
Summary
- Loan Amount
- Monthly EMI
- Total EMI Amount
- Total Invested
- Total Rental Income
- Save From Rent
- Total Property Value
- Net Profit
- 0.00
- 0.00
- 0.00
- 0.00
- 0.00
- 0.00
- 0.00
- 0.00




















