Overview
- Updated On:
- February 28, 2026
- 4 Bathrooms
- 3,229 ft2
Description
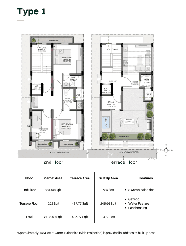
Panda I 22 – 4 and 4.5 BHK Villas in Bhubaneswar
Project Units : 23
Area Unit : sq.ft.
Project Area : 1.19 Acres
Sizes : 2809 – 3229 sq.ft.
Project Size : 23 units
Launch Date : May, 2025
Avg. Price : Price on request
Possession Starts : Feb, 2028
Configurations : 4, 4.5 BHK Villas
Project Amenities
Children’s Play Area
Cricket Pitch
Solid Waste Management And Disposal
Swimming Pool
Football Field
Lift(s)
Landscaping & Tree Planting
Water Conservation, Rain water Harvesting
Badminton Court
Gymnasium
Electrification(Transformer, Solar Energy etc)
Car Parking
24X7 Water Supply
Temple
Senior Citizen Siteout
Basketball Court
Gated Community
Banquet Hall
Storm Water Drains
Internal Roads & Footpaths
24×7 Security
Sewage Treatment Plant
Club House
Rental Income Calculator
This is rent calculator for help investor to calculate rental income. Lets Calculate how much you earn if you buy property in this project and rent it out for many years.
Project : Panda I 22 – 4 and 4.5 BHK Villas in Bhubaneswar
Property ROI calculator
Summary
- Loan Amount
- Monthly EMI
- Total EMI Amount
- Total Invested
- Total Rental Income
- Save From Rent
- Total Property Value
- Net Profit
- 0.00
- 0.00
- 0.00
- 0.00
- 0.00
- 0.00
- 0.00
- 0.00





















