Overview
- Updated On:
- October 2, 2025
- 1 Bedrooms
- 2 Bedrooms
- 1 Bathrooms
- 575 ft2
Description
Poonam Vista – 1 and 2 BHK Apartment in Mumbai
Configurations : 1,2 BHK Apartment
Possession By : Dec 2025
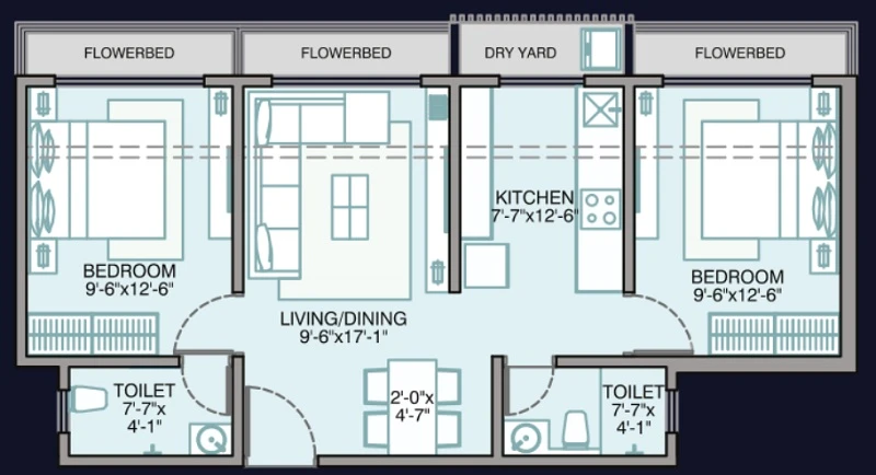
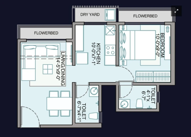
Super Builtup Area : 371 – 575 sq.ft
About Poonam Vista
Poonam Vista Residential projects in Mumbai offering Apartments for sale in Virar west. The property offers 1&2BHK Apartments meticulously planned that guarantee a hassle-free lifestyle. As per the area plan it is set in 0.72 Acres and has 47 units in the size range 371.00 sq.ft. – 575.00 sq.ft. Possession date is Dec 2025. Poonam Vista offers prices suitable for both luxurious and affordable Apartments in Mumbai. Poonam Vista is located Virar west. This is considered as best Apartments for sale in Mumbai and best Apartments for sale in Virar west.
The floor plan of Poonam Vista enables the best utilization of the space with spacious balconies, standard kitchen size and high-quality fixtures. Location advantage of Poonam Vista is its proximity to Reputed Schools and Colleges. Unmatched connectivity from all the important landmarks and places. Easy access to everyday utility such as hospitals, schools, supermarts, parks, recreational centers etc.
In terms of facilities, Poonam Vista is loaded with multiple offerings such as Gymnasium, Power Backup. For families with kids, there is Children Play Area. It is a Gated Community. Immerse yourself in a world of sports with provisions for Tennis Court, Basketball court, Badminton Court, Cycling. Residents can make use of Restaurants/Cafeterias, Internet / Wi-Fi, provisions in the project. There is 24×7 Security. It is one of the most admired properties for sale in Mumbai and admired properties for sale in Virar west.
Customer value has been a constant topic of discussion. Foresight, acumen, and the pursuit of perfection have propelled us far in Virar over the last 25 years. As we redefine industry benchmarks, our ideology of nurturing dreams remains consistent. Poonam Group has successfully merged aesthetics with latest technology, forming structures that will define the city’s landscapes, based on the precincts of ethical business model highlighting customer value proposition. Every detail is handled with care, ensuring value that lasts a lifetime. A dedicated team of engineers, artists, and designers with specialised skill sets strive to build residential and commercial spaces with subline elevations that retain their core functionality.
Amenities
Lift
Security
CCTV Camera
Maintenance Staff
Swimming Pool
Gym
Visitor Parking
Jogging Track
Kids Play Area
Kids Play Pool
Multipurpose Hall
Power Backup
Large Open Space
Internet Connectivity
24by7 Water
Waste Disposal
RainWater Harvesting
Gated Society
Laundry Services
Rental Income Calculator
This is rent calculator for help investor to calculate rental income. Lets Calculate how much you earn if you buy property in this project and rent it out for many years.
Project : Poonam Vista – 1 and 2 BHK Apartment in Mumbai
Property ROI calculator
Summary
- Loan Amount
- Monthly EMI
- Total EMI Amount
- Total Invested
- Total Rental Income
- Save From Rent
- Total Property Value
- Net Profit
- 0.00
- 0.00
- 0.00
- 0.00
- 0.00
- 0.00
- 0.00
- 0.00


















