Overview
- Updated On:
- October 2, 2025
- 2 Bedrooms
- 3 Bedrooms
- 2 Bathrooms
- 1,421 ft2
Description
RNA Royal Park – 2 and 3 BHK Apartment in Mumbai
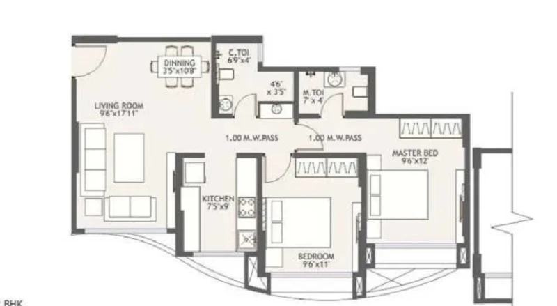
Configurations : 2,3 BHK Apartment
Project Status : Ready to Move
Super Builtup Area : 1055 – 1421 sq.ft
About RNA Royal Park
RNA NG Royal Park Residential projects in Mumbai offering Apartments for sale in Kanjurmarg East. The property offers 2&3BHK Apartments meticulously planned that guarantee a hassle-free lifestyle. As per the area plan it is set in 4 Acres and has 90 units in the size range 1055.00 sq.ft. – 1421.00 sq.ft. Possession date is ready to move. RNA NG Royal Park offers prices suitable for both luxurious and affordable Apartments in Mumbai. RNA NG Royal Park is located Kanjurmarg East. This is considered as best Apartments for sale in Mumbai and best Apartments for sale in Kanjurmarg East.
The floor plan of RNA NG Royal Park enables the best utilization of the space with spacious balconies, standard kitchen size and high-quality fixtures. Location advantage of RNA NG Royal Park is its proximity to Reputed Schools and Colleges. Unmatched connectivity from all the important landmarks and places. Easy access to everyday utility such as hospitals, schools, supermarts, parks, recreational centers etc.
In terms of facilities, RNA NG Royal Park is loaded with multiple offerings such as Gymnasium, Power Backup. For families with kids, there is Children Play Area. It is a Gated Community. Immerse yourself in a world of sports with provisions for Tennis Court, Basketball court, Badminton Court, Cycling. Residents can make use of Restaurants/Cafeterias, Internet / Wi-Fi, provisions in the project. There is 24×7 Security. It is one of the most admired properties for sale in Mumbai and admired properties for sale in Kanjurmarg East.
With over 3 decades of experience of working in the Real Estate and construction business,RNA NG is rated among the top real estate companies in Mumbai. Over the course of our work,we have undertaken and successfully completed several projects of varying magnitude and size. With our projects we have redefined the meaning of comfortable living; we have given hundreds of our fellow Mumbaikars a Home where they can live peacefully. We have undertaken various projects both in the central and western suburban areas in Mumbai. We carefully plan every home and we tactfully execute the same keeping in view the location, lifestyle and taste of the residents. At RNA NG, we don’t just preach but have an enviable track record of delivering what we promise. The ability to undertake projects of varying budgets and preferences makes us a leader in our niche. Our projects spell class and most of all offer the comfort people deserve.
Amenities
Lift
Security
CCTV Camera
Maintenance Staff
Swimming Pool
Gym
Visitor Parking
Jogging Track
Kids Play Area
Kids Play Pool
Multipurpose Hall
Power Backup
Large Open Space
Internet Connectivity
24by7 Water
Waste Disposal
RainWater Harvesting
Gated Society
Laundry Services
Rental Income Calculator
This is rent calculator for help investor to calculate rental income. Lets Calculate how much you earn if you buy property in this project and rent it out for many years.
Project : RNA Royal Park – 2 and 3 BHK Apartment in Mumbai
Property ROI calculator
Summary
- Loan Amount
- Monthly EMI
- Total EMI Amount
- Total Invested
- Total Rental Income
- Save From Rent
- Total Property Value
- Net Profit
- 0.00
- 0.00
- 0.00
- 0.00
- 0.00
- 0.00
- 0.00
- 0.00


















