Overview
- Updated On:
- October 2, 2025
- 3 Bedrooms
- 3 Bathrooms
- 983 ft2
Description
Runwal Forests – 3 BHK Apartment in Mumbai
Configurations : 3 BHK Apartment
Possession By : Jul 2026
Super Builtup Area : 983 – 983 sq.ft
About Runwal Forests
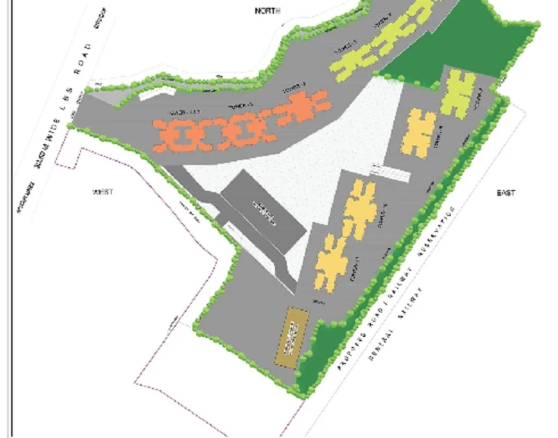
Runwal Forests Residential projects in Mumbai offering Apartments for sale in Kanjurmarg. The property offers 3BHK Apartments meticulously planned that guarantee a hassle-free lifestyle. As per the area plan it is set in 16 Acres and has 2208 units in the size range 983.00 sq.ft. Possession date is July 2026. Runwal Forests offers prices suitable for both luxurious and affordable Apartments in Mumbai. Runwal Forests is located Kanjurmarg. This is considered as best Apartments for sale in Mumbai and best Apartments for sale in Kanjurmarg. The floor plan of Runwal Forests enables the best utilization of the space with spacious balconies, standard kitchen size and high-quality fixtures. Location advantage of Runwal Forests is its proximity to Reputed Schools and Colleges. Unmatched connectivity from all the important landmarks and places. Easy access to everyday utility such as hospitals, schools, supermarts, parks, recreational centers etc. In terms of facilities, Runwal Forests is loaded with multiple offerings such as Gymnasium, Power Backup. For families with kids, there is Children Play Area. It is a Gated Community. Immerse yourself in a world of sports with provisions for Tennis Court, Basketball court, Badminton Court, Cycling. Residents can make use of Restaurants/Cafeterias, Internet / Wi-Fi, provisions in the project. There is 24×7 Security. It is one of the most admired properties for sale in Mumbai and admired properties for sale in Kanjurmarg. Established in 1978, Runwal is one of Mumbai’s premier real estate developers, operating in the residential, commercial and organized retails verticals. With a robust track record of 51 delivered projects with over 20 thousand Happy families, it has continuously driven to keep the ‘customer’ as a focal point in the designing, planning and construction of all its projects.
Amenities
Lift
Security
CCTV Camera
Maintenance Staff
Swimming Pool
Gym
Visitor Parking
Jogging Track
Kids Play Area
Kids Play Pool
Multipurpose Hall
Power Backup
Large Open Space
Internet Connectivity
24by7 Water
Waste Disposal
RainWater Harvesting
Gated Society
Laundry Services
Rental Income Calculator
This is rent calculator for help investor to calculate rental income. Lets Calculate how much you earn if you buy property in this project and rent it out for many years.
Project : Runwal Forests – 3 BHK Apartment in Mumbai
Property ROI calculator
Summary
- Loan Amount
- Monthly EMI
- Total EMI Amount
- Total Invested
- Total Rental Income
- Save From Rent
- Total Property Value
- Net Profit
- 0.00
- 0.00
- 0.00
- 0.00
- 0.00
- 0.00
- 0.00
- 0.00


















