Overview
- Updated On:
- September 30, 2025
- 1 Bedrooms
- 2 Bedrooms
- 1 Bathrooms
- 754 ft2
Description
Sanghvi Palazzo – 1 and 2 BHK Apartment in Mumbai
Configurations : 1,2 BHK Apartment
Possession By : Dec 2027
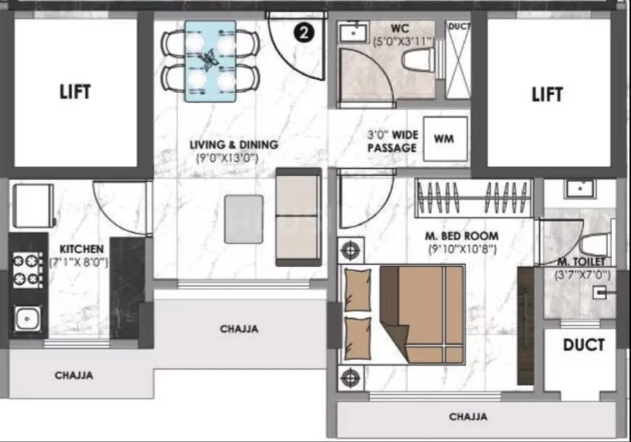
Super Builtup Area : 358 – 754 sq.ft
About Sanghvi Palazzo
Sanghvi Palazzo Residential project in Mumbai offering Apartments for Sale in Andheri West. The property offers 1&2BHK Apartments meticulously planned that guarantee a hassle-free lifestyle. As per the area plan it is set in 0.3 Acres and has 41 units in the size range 358 – 754 sq.ft. Possession date is Dec 2027. Sanghvi Palazzo offers prices suitable for both luxurious and affordable Apartments in Mumbai. Sanghvi Palazzo is located Andheri West. This is considered as best Apartments for Sale in Mumbai and best Apartments for Sale in Andheri West.
The floor plan of Sanghvi Palazzo enables the best utilization of the space with spacious balconies, standard kitchen size and high-quality fixtures. Location advantage of Sanghvi Palazzo is its proximity to Reputed Schools and Colleges. Unmatched connectivity from all the important landmarks and places. Easy access to everyday utility such as hospitals, schools, supermarts, parks, regional centers etc.
In terms of facilities, Sanghvi Palazzo is loaded with multiple offerings such as Gymnasium, Power Backup. For families with kids, there is Children Play Area. It is a Gated Community. There is 24×7 Security. It is one of the most admired properties in India.
Amenities
Lift
Security
CCTV Camera
Maintenance Staff
Gym
Visitor Parking
Kids Play Area
Kids Play Pool
Multipurpose Hall
Power Backup
Large Open Space
Internet Connectivity
24by7 Water
Waste Disposal
RainWater Harvesting
Gated Society
Laundry Services
Rental Income Calculator
This is rent calculator for help investor to calculate rental income. Lets Calculate how much you earn if you buy property in this project and rent it out for many years.
Project : Sanghvi Palazzo – 1 and 2 BHK Apartment in Mumbai
Property ROI calculator
Summary
- Loan Amount
- Monthly EMI
- Total EMI Amount
- Total Invested
- Total Rental Income
- Save From Rent
- Total Property Value
- Net Profit
- 0.00
- 0.00
- 0.00
- 0.00
- 0.00
- 0.00
- 0.00
- 0.00


















