Overview
- Updated On:
- October 8, 2025
- 4 Bedrooms
- 5 Bedrooms
- 4 Bathrooms
- 2,709 ft2
Description
Avadh Bertina – 4 and 5 BHK Apartment in Surat
Configurations : 4,5 BHK Apartment
Possession By : Dec 2028
Super Builtup Area : 2002 – 2709 sq.ft
About Avadh Bertina
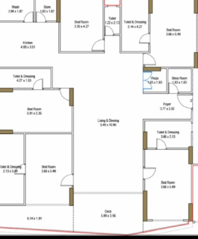
Avadh Bertina Residential projects in Surat offering Apartments for Sale in Vesu. The property offers 4&5BHK Apartments meticulously planned that guarantee a hassle-free lifestyle. As per the area plan it is set in 3.84 Acres and the size range 2002.00 sq.ft. – 2709.00 sq.ft. Possession date is Dec 2028. Avadh Bertina offers prices suitable for both luxurious and affordable Apartments in Surat. Avadh Bertina is located Vesu. This is considered as best Apartments for Sale in Surat and best Apartments for Sale in Vesu.
The floor plan of Avadh Bertina enables the best utilization of the space with spacious balconies, standard kitchen size and high-quality fixtures. Location advantage of Avadh Bertina is its proximity to Reputed Schools and Colleges. Unmatched connectivity from all the important landmarks and places. Easy access to everyday utility such as hospitals, schools, supermarts, parks, recreational centers etc.
In terms of facilities, Avadh Bertina is loaded with multiple offerings such as Gymnasium, Power Backup. For families with kids, there is Children Play Area. It is a Gated Community. Immerse yourself in a world of sports with provisions for Tennis Court, Basketball court, Badminton Court, Cycling. Residents can make use of Restaurants/Cafeterias, Internet / Wi-Fi, provisions in the project. There is 24×7 Security. It is one of the most admired properties for Sale in Surat and admired properties for Sale in Vesu.
Amenities
Lift
Security
CCTV Camera
Maintenance Staff
Swimming Pool
Gym
Visitor Parking
Jogging Track
Kids Play Area
Kids Play Pool
Multipurpose Hall
Power Backup
Large Open Space
Internet Connectivity
24by7 Water
Waste Disposal
RainWater Harvesting
Gated Society
Laundry Services
Rental Income Calculator
This is rent calculator for help investor to calculate rental income. Lets Calculate how much you earn if you buy property in this project and rent it out for many years.
Project : Avadh Bertina – 4 and 5 BHK Apartment in Surat
Property ROI calculator
Summary
- Loan Amount
- Monthly EMI
- Total EMI Amount
- Total Invested
- Total Rental Income
- Save From Rent
- Total Property Value
- Net Profit
- 0.00
- 0.00
- 0.00
- 0.00
- 0.00
- 0.00
- 0.00
- 0.00























