Overview
- Updated On:
- October 3, 2025
- 1 Bedrooms
- 2 Bathrooms
- 852 ft2
Description
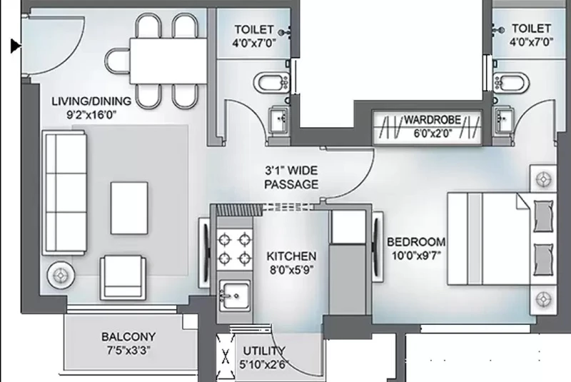
Birla Vanya Phase 1 – 1, 2 and 3 BHK Apartment in Thane
Configurations : 1,2,3 BHK Apartment
Possession By : Jun 2024
Super Builtup Area : 426 – 852 sq.ft
About Birla Vanya Phase 1
Birla Vanya Phase 1 Residential projects in Thane offering Apartments for sale in Kalyan West. The property offers 1,1.5,2&3BHK Apartments meticulously planned that guarantee a hassle-free lifestyle. As per the area plan it is set in 21 Acres and has 733 units in the size range 426.00 sq.ft. – 852.00 sq.ft. Possession date is June 2024. Birla Vanya Phase 1 offers prices suitable for both luxurious and affordable Apartments in Thane. Birla Vanya Phase 1 is located Kalyan West. This is considered as best Apartments for sale in Thane and best Apartments for sale in Kalyan West.
The floor plan of Birla Vanya Phase 1 enables the best utilization of the space with spacious balconies, standard kitchen size and high-quality fixtures. Location advantage of Birla Vanya Phase 1 is its proximity to Reputed Schools and Colleges. Unmatched connectivity from all the important landmarks and places. Easy access to everyday utility such as hospitals, schools, supermarts, parks, recreational centers etc.
In terms of facilities, Birla Vanya Phase 1 is loaded with multiple offerings such as Gymnasium, Power Backup. For families with kids, there is Children Play Area. It is a Gated Community. Immerse yourself in a world of sports with provisions for Tennis Court, Basketball court, Badminton Court, Cycling. Residents can make use of Restaurants/Cafeterias, Internet / Wi-Fi, provisions in the project. There is 24×7 Security. It is one of the most admired properties for sale in Thane and admired properties for sale in Kalyan West.
Amenities
Lift
Security
CCTV Camera
Maintenance Staff
Swimming Pool
Gym
Visitor Parking
Jogging Track
Kids Play Area
Kids Play Pool
Multipurpose Hall
Power Backup
Large Open Space
Internet Connectivity
24by7 Water
Waste Disposal
RainWater Harvesting
Gated Society
Laundry Services
Rental Income Calculator
This is rent calculator for help investor to calculate rental income. Lets Calculate how much you earn if you buy property in this project and rent it out for many years.
Project : Birla Vanya Phase 1 – 1, 2 and 3 BHK Apartment in Thane
Property ROI calculator
Summary
- Loan Amount
- Monthly EMI
- Total EMI Amount
- Total Invested
- Total Rental Income
- Save From Rent
- Total Property Value
- Net Profit
- 0.00
- 0.00
- 0.00
- 0.00
- 0.00
- 0.00
- 0.00
- 0.00

















