Overview
- Updated On:
- October 3, 2025
- 1 Bedrooms
- 2 Bedrooms
- 2 Bathrooms
- 1,561 ft2
Description
Kalpataru Parkcity – 1, 2 and 3 BHK Apartment in Thane
Configurations : 1,2,3 BHK Apartment
Possession By : May 2026
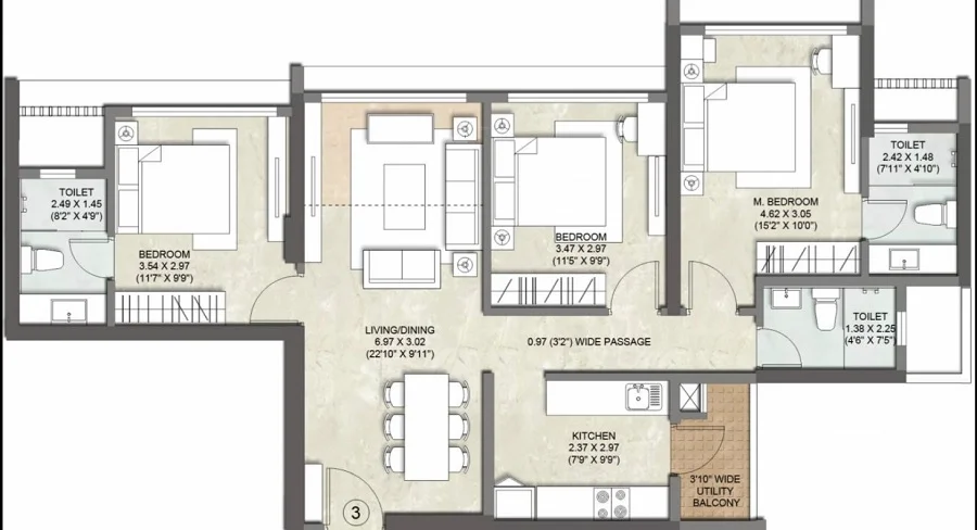
Super Builtup Area : 468 – 1561 sq.ft
About Kalpataru Parkcity
Kalpataru Parkcity Residential project in Thane offering Apartments for Sale in Thane west. The property offers 1,2&3BHK Apartments meticulously planned that guarantee a hassle-free lifestyle. As per the area plan it is set in 100 Acres and the size range 468.00 sq.ft. – 1561.00 sq.ft. Possession date is May 2026. Kalpataru Parkcity offers prices suitable for both luxurious and affordable Apartments in Thane. Kalpataru Parkcity is located Thane west. This is considered as best Apartments for Sale in Thane and best Apartments for Sale in Thane west.
The floor plan of Kalpataru Parkcity enables the best utilization of the space with spacious balconies, standard kitchen size and high-quality fixtures. Location advantage of Kalpataru Parkcity is its proximity to Reputed Schools and Colleges. Unmatched connectivity from all the important landmarks and places. Easy access to everyday utility such as hospitals, schools, supermarts, parks, recreational centers etc.
In terms of facilities, Kalpataru Parkcity is loaded with multiple offerings such as Gymnasium, Power Backup. For families with kids, there is Children Play Area. It is a Gated Community. There is 24×7 Security. It is one of the most admired properties in India.
Amenities
Lift
Security
CCTV Camera
Maintenance Staff
Swimming Pool
Gym
Visitor Parking
Jogging Track
Kids Play Area
Kids Play Pool
Multipurpose Hall
Power Backup
Large Open Space
Internet Connectivity
24by7 Water
Waste Disposal
RainWater Harvesting
Gated Society
Laundry Services
Rental Income Calculator
This is rent calculator for help investor to calculate rental income. Lets Calculate how much you earn if you buy property in this project and rent it out for many years.
Project : Kalpataru Parkcity – 1, 2 and 3 BHK Apartment in Thane
Property ROI calculator
Summary
- Loan Amount
- Monthly EMI
- Total EMI Amount
- Total Invested
- Total Rental Income
- Save From Rent
- Total Property Value
- Net Profit
- 0.00
- 0.00
- 0.00
- 0.00
- 0.00
- 0.00
- 0.00
- 0.00



















