Overview
- Updated On:
- October 3, 2025
- 1 Bedrooms
- 2 Bedrooms
- 1 Bathrooms
- 570 ft2
Description
Runwal MyCity – 1 and 2 BHK Apartments in Thane
Configurations : 1,2 BHK Apartment
Project Status : Ready to Move
Super Builtup Area : 350 – 570 sq.ft
About Runwal MyCity
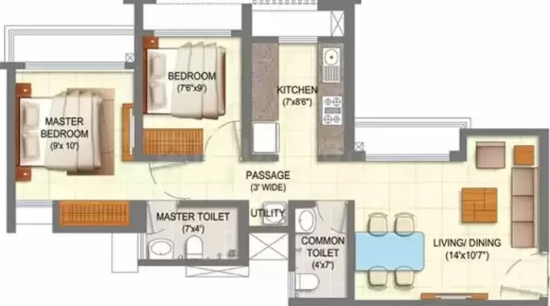
Runwal MyCity Residential projects in Thane offering Apartments for sale in Dombivali. The property offers 1&2BHK Apartments meticulously planned that guarantee a hassle-free lifestyle. As per the area plan it is set in 156 Acres and has 1296 units in the size range 350.00 sq.ft. – 570.00 sq.ft. Possession date is ready to move. Runwal MyCity offers prices suitable for both luxurious and affordable Apartments in Thane. Runwal MyCity is located Dombivali. This is considered as best Apartments for sale in Thane and best Apartments for sale in Dombivali. The floor plan of Runwal MyCity enables the best utilization of the space with spacious balconies, standard kitchen size and high-quality fixtures. Location advantage of Runwal MyCity is its proximity to Reputed Schools and Colleges. Unmatched connectivity from all the important landmarks and places. Easy access to everyday utility such as hospitals, schools, supermarts, parks, recreational centers etc. In terms of facilities, Runwal MyCity is loaded with multiple offerings such as Gymnasium, Power Backup. For families with kids, there is Children Play Area. It is a Gated Community. Immerse yourself in a world of sports with provisions for Tennis Court, Basketball court, Badminton Court, Cycling. Residents can make use of Restaurants/Cafeterias, Internet / Wi-Fi, provisions in the project. There is 24×7 Security. It is one of the most admired properties for sale in Thane and admired properties for sale in Dombivali. Established in 1978, Runwal is one of Mumbai’s premier real estate developers, operating in the residential, commercial and organized retails verticals. With a robust track record of 51 delivered projects with over 20 thousand Happy families, it has continuously driven to keep the ‘customer’ as a focal point in the designing, planning and construction of all its projects.
Amenities
Lift
Security
CCTV Camera
Maintenance Staff
Swimming Pool
Gym
Visitor Parking
Jogging Track
Kids Play Area
Kids Play Pool
Multipurpose Hall
Power Backup
Large Open Space
Internet Connectivity
24by7 Water
Waste Disposal
RainWater Harvesting
Gated Society
Laundry Services
Rental Income Calculator
This is rent calculator for help investor to calculate rental income. Lets Calculate how much you earn if you buy property in this project and rent it out for many years.
Project : Runwal MyCity – 1 and 2 BHK Apartments in Thane
Property ROI calculator
Summary
- Loan Amount
- Monthly EMI
- Total EMI Amount
- Total Invested
- Total Rental Income
- Save From Rent
- Total Property Value
- Net Profit
- 0.00
- 0.00
- 0.00
- 0.00
- 0.00
- 0.00
- 0.00
- 0.00



















